Осьовий детектор люфтів HDOT-2.6

Опис Відгуки Доставка і оплата Cервіс
Арт.: 49382
391 230 ГРН
Купити у розстрочку
Energotest (Угорщина)

Гідравлічний осьовий детектор люфтів для легкових і легких комерційних автомобілів з навантаженням на вісь до 2,6 тонн

Обладнання з гідравлічним приводом для перевірки елементів підвіски та рульового управління транспортних засобів з навантаженням на вісь до 2,6 т. Завдяки 4-м різним напрямкам руху з одного боку детектор люфтів підходить для діагностики та періодичних технічних оглядів. Низька механіка дозволяє установку на оглядову яму та підйомники.

Тестування категорій транспортних засобів класу IV і VII (M1, N1)
Може встановлюватися на оглядову яму та підйомники
Бічні та поворотні рухи з центрального положення
Поверхня випробувальної пластини зі сталі
Огляди однією особою зі спеціальним притискачем педалі гальма
Низхідні гідравлічні з'єднання
Покриття рухомих країв пластини забезпечує додаткову безпеку для користувача
При вимкненому обладнанні тестові пластини також фіксуються
Постачається без гідравлічних шлангів і гідравлічної оливи

максимальне навантаження на вісь 2,6 тонни
мінімальна ширина колії 1000 мм
максимальна ширина колії 2100 мм
розміри тестової плити 550 x 275 мм
поверхня тестової плити ребриста сталь
максимальне зусилля на тестову плиту 8000 Н
максимальний крутний момент 1300 Нм
швидкість руху 40 мм/сек
швидкість повороту 10°/сек
бічні рухи ±40 мм
повертальні рухи ±8°
Тестова пластина повинна бути розташована з боку керма
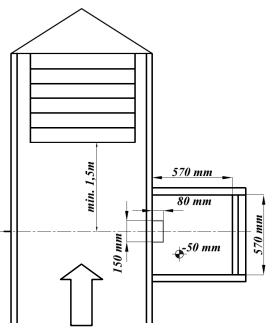
розміри для встановлення (Д x Ш x В) на оглядову яму і підйомник 570 x 570 x 56 мм
захист від корозії оцинковка
кількість гідравлічної оливи 5,8 літрів
марка гідравлічної оливи Hydrokomol U32
альтернативна марка оливи ISO-L-HM 32 або DIN-HLP 32
Для місць, де температура постійно нижча за 0°C, рекомендується якість гідравлічної оливи U10, щоб уникнути замерзання оливи
потужність електродвигуна 1,1 кВт
джерело живлення 3 x 400 В
запобіжник 3 х 10 А

 

Габаритні розміри механічного вузла

Напрямки рухів HDOT-2.6 (система правого руля)

Вимоги до встановлення
Підготовка бетонної основи з рамою для захисту краю
Підготовка доріжок для електронних кабелів і гідравлічних шлангів
Підготовка електромонтажу та захисних трубок для електронних кабелів та гідравлічних шлангів
Гідравлічна олива

*Схема монтажу (система з правим кермом)

Додаткові аксесуари (обладнання):
артикул 49383 - комплект гідравлічних шлангів для HDOT 2.6 (8x1800 мм)
артикул 49384 - комплект гідравлічних шлангів для HDOT 2.6 (8x2400 мм)
артикул 27481 - набір пандусів для детектора люфту (2 пари), висота 55 мм, для установки над підлогою

Гарантія 1 рік
Відгуки покупців про Осьовий детектор люфтів HDOT-2.6

Про цей товар поки немає відгуків

  • БЕЗКОШТОВНО в межах Києва, Дніпра, Харкова, Львова, Одеси;
  • самовивіз зі складу (контакти);
  • кур'єрські служби: Нова Пошта/Делівері/SAT.
Доставка в межах Києва, Дніпра, Львова, Харкова та Одеси здійснюється безкоштовно.

Для відправки в інші регіони ми користуємося такими компаніями-перевізникам:
  • Нова Пошта
  • Делівері
  • SAT
Якщо є необхідність скористатися іншим перевізником, уточнюйте таку можливість у наших менеджерів.

Як правило, відвантаження проводиться день в день, а це означає, що вже на наступний день Ви зможете отримати товар в зручному для Вас представництві.
 

У сервісних центрах компанії "АВТОМАШТЕХ" працюють кваліфіковані інженери з вищою освітою. Ми регулярно відправляємо наших співробітників на навчання в компанії-виробники для вивчення особливостей обслуговування того чи іншого обладнання.

Послуги сервісного центру:

  • обслуговування та ремонт обладнання в гарантійний термін;
  • обслуговування та ремонт обладнання в післягарантійний термін;
  • прорахунок і установка повітряних систем;
  • підбір та продаж запчастин на обладнання;
  • надання рекомендацій по розміщенню обладнання.

м. Київ 
вул Гарматна, 9
тел.: +380 (67) 403-56-97
service@tiptop.com.ua
GPS координати:50.455429, 30.404905

м.Дніпро
вул. Велика Діївська.52
тел.: (+38 067) 538-70-14;
GPS координати: 48.4759497,34.909491.
e-mail:dnepr@tiptop.com.ua

м.Львів
вул. Хімічна, 4
тел.: (+38 067) 240-03-60;
GPS координати: 49.8546487,24.0243043,17
e-mail: lviv.lviv@tiptop.com.ua

м. Харків
пр-т.Героїв Харкова.199
тел.: (38 067) 693-13-57;
GPS координати: 49.9770534,36.2952883
e-mail: kharkov@tiptop.com.ua

Ціни:

Вартість послуг сервісного центру договірна. Для уточнення, зв'язуйтеся з нашими представництвами.

Зверніть увагу на те, що гарантія, яка надається нашою компанією, не поширюється на електричну частину обладнання, яке підключено до електричної мережі без стабілізатора і аналізатора фаз!